アーキヤマデ
製品情報
リベットルーフ
アクシスコート
プリオグリーン
エネブリッド
コリドール
パラトップ
アクアキューブ
エバブレン
クラクタイト
パラボード
クリスタル・ヴァレー
施工事例
シート防水
太陽光
プール防水
塗膜防水
屋上緑化
企業情報
アーキヤマデの強み
会社概要
社長メッセージ
沿革
関連企業
環境への取り組み
アーキヤマデの環境技術
具体的な取り組み
よくあるご質問
ブログ
採用情報
資料
デジタルカタログ
カタログ請求
お問い合わせ
MENU
製品情報
リベットルーフ
アクシスコート
プリオグリーン
エネブリッド
コリドール
パラトップ
アクアキューブ
エバブレン
クラクタイト
パラボード
クリスタル・ヴァレー
施工事例
シート防水
太陽光
プール防水
塗膜防水
屋上緑化
企業情報
アーキヤマデの強み
会社概要
社長メッセージ
沿革
関連企業
環境への取り組み
アーキヤマデの環境技術
具体的な取り組み
よくあるご質問
ブログ
採用情報
資料
デジタルカタログ
カタログ請求
お問い合わせ
サイトマップ
プライバシーポリシー
CADデータ
cad
Home
資料
CADデータ
検索結果 166件
検索条件
種別:CADデータ
金属製貫通フランジ納まり例 拡大図
CADデータ
手すり・ラダーハンドル廻り納まり例
CADデータ
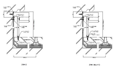
水切りタイプPBM-3
CADデータ
水切りタイプPBM-4
CADデータ
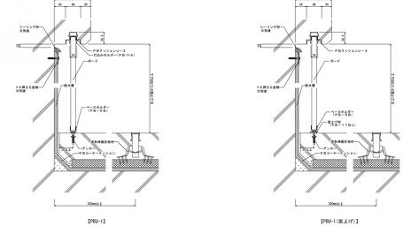
あご下タイプPBU-1
CADデータ
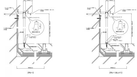
あご下タイプPBJ-1
CADデータ
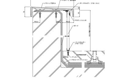
笠木タイプPBK-3
CADデータ
勾配屋根専用 ケラバ部 アンカー固定工法
CADデータ
勾配屋根専用 ケラバ部 アンカー固定断熱工法
CADデータ
勾配屋根専用 ケラバ部 接着工法
CADデータ
勾配屋根専用 ケラバ部 接着断熱工法
CADデータ
勾配屋根専用 軒先部 アンカー固定断熱工法
CADデータ
1
...
9
10
11
12
13
14
条件から検索する
データ種別
CADデータ
カタログ名称
選択して下さい
総合カタログ
リベットルーフカタログ
リベットルーフ防水改修カタログ
アスファルトシングル屋根改修カタログ
LCSカタログ(新築用)
勾配屋根専用防水シート「リベットルーフART」カタログ
連結ディスクADCカタログ
グリッドベースMカタログ
グリッドベースL2カタログ
アクシスコートカタログ
アクシスコートDXカタログ
アクアキューブカタログ
エバブレンカタログ
コリドールカタログ
エアードライカタログ
クラクタイト・パラボードカタログ
掲載ページ
キーワード