アーキヤマデ
製品情報
リベットルーフ
アクシスコート
プリオグリーン
エネブリッド
コリドール
パラトップ
アクアキューブ
エバブレン
クラクタイト
パラボード
クリスタル・ヴァレー
施工事例
シート防水
太陽光
プール防水
塗膜防水
屋上緑化
企業情報
アーキヤマデの強み
会社概要
社長メッセージ
沿革
関連企業
環境への取り組み
アーキヤマデの環境技術
具体的な取り組み
よくあるご質問
ブログ
採用情報
資料
デジタルカタログ
カタログ請求
お問い合わせ
MENU
製品情報
リベットルーフ
アクシスコート
プリオグリーン
エネブリッド
コリドール
パラトップ
アクアキューブ
エバブレン
クラクタイト
パラボード
クリスタル・ヴァレー
施工事例
シート防水
太陽光
プール防水
塗膜防水
屋上緑化
企業情報
アーキヤマデの強み
会社概要
社長メッセージ
沿革
関連企業
環境への取り組み
アーキヤマデの環境技術
具体的な取り組み
よくあるご質問
ブログ
採用情報
資料
デジタルカタログ
カタログ請求
お問い合わせ
サイトマップ
プライバシーポリシー
CADデータ
cad
Home
資料
CADデータ
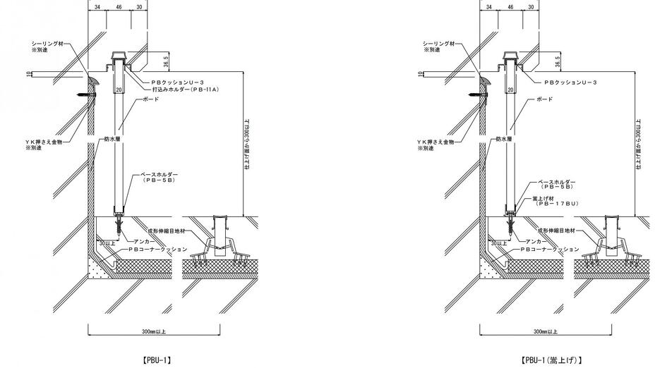
あご下タイプPBU-1
あご下タイプPBU-1
種別 :
JWWファイル
download
DWGファイル
download
PDFファイル
download
カタログ
クラクタイト・パラボードカタログ : 17
前の記事
水切りタイプPBM-4
一覧へ戻る
次の記事
あご下タイプPBJ-1